

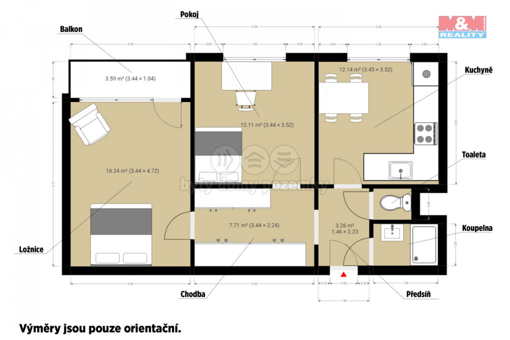
Exkluzivně nabízíme k prodeji byt 2+1 o rozloze 56 m² situovaný v 5.patře kompletně revitalizovaného domu s výtahem v klidné a strategické části města Klatovy. Jednotka se skládá z obývacího pokoje, ložnice, prosvětlené kuchyně s jídelním koutem, vstupní chodby, koupelny a samostatného WC. Je po kompletní rekonstrukci (nová okna, podlahy, rozvody, výmalba atd), ve velmi vkusném designovém provedení, které je možné po dohodě odkoupit za symbolickou cenu. Dům je také po celkové revitalizaci (nová okna, zateplení, fasáda, střecha, společné prostory, výtah). Hospodaření SVJ je dobré, nízké provozní náklady, které se nebudou navyšovat. Výhodou bytu je také vlastní zasklená lodžie, která nabízí krásný výhled na vilovou část města Klatovy. Veškerá občanská vybavenost v docházkové vzdálenosti několika minut. Doporučuji prohlídku.