
5 399 000 Kč

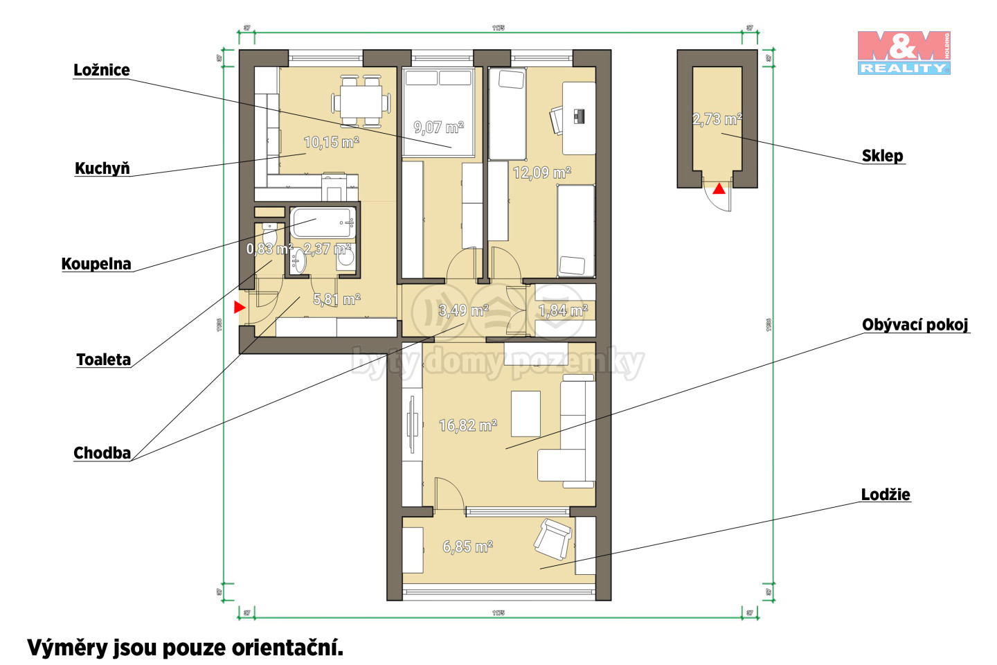
Nabízíme k prodeji světlý a prostorný byt 3+1 o rozloze 76 m² v Plzni, ul. Ledecká. Jednotka je situovaná ve 8.patře s prostornou zasklenou lodžií a krásným výhledem. Dům je revitalizovaný (nové zateplení, fasáda, okna, výtah). Byt je zrekonstruován. Skládá se z obývacího pokoje, samostatné kuchyně s dostatkem prostoru, ložnice, dětského pokoje, koupelny a samostatného WC. Jednotka je také velmi úsporná na spotřebu energie a také na provozní náklady. K bytu náleží také sklepní kóje, kolárnu/kočárkárnu, sušárnu. Výborná lokalita Plzně s veškerou občanskou vybaveností v docházkové vzdálenosti několika minut pěšky, bez nutnosti vlastnit automobil. Vřele doporučuji prohlídku.