
5 399 000 Kč

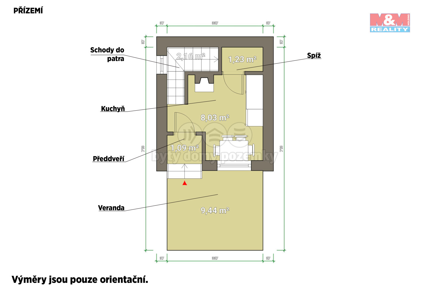
Nabízíme k prodeji lákavou zahradu o ploše 417m², situovanou v klidné části obce v katastrálním území Klatovy. Jedná se o ideální místo pro ty, kdo hledají soukromí a klid, avšak s pohodlným dosahem do centra obce. Tento pozemek v dobrém stavu je skvělou příležitostí pro relaxaci, pěstování ovoce, zeleniny nebo pro realizaci vašich zahradních snů. Na zahradě se nachází krásná zděná chatička, která poskytuje dodatečný prostor pro odpočinek a trávení času s rodinou a přáteli. Chata je podsklepená a vytápění je řešeno kamny. Při zájmu o osobní prohlídku nebo pro více informací nás neváhejte kontaktovat. Těšíme se na vaši návštěvu této jedinečné nabídky, kde klid a příroda jdou ruku v ruce s pohodlím městského života.